第十四章 墙面与柱面装饰装修构造图
墙面是室内空间中的垂直界面,墙面的装饰装修是室内设计中非常重要的内容。墙面装饰装修除对室内起美化作用外,还有保护墙体、保证室内使用等功能,如防潮、防污、防撞击和声光反射、吸声、保温、隔热等。
墙面装饰装修的基本构造包括底层、中间层、饰面层三部分。
底层是通过对墙体表面找平,以保证与面层连接牢固。
砖质墙体,一般采用水泥或 1∶1∶6 水泥石灰混合砂浆刮糙处理,厚度一般控制在 10 mm 左右,当抹灰总厚度大于或等于 35 mm 时,应采取加强措施。
轻质砌块墙体,一般采用建筑胶满涂墙面,以封闭砌块表面空隙,然后做底层抹灰。
混凝土墙体,因其表面光滑甚至有脱模的油迹残留,必须作一定的处理,以保证抹灰有一定的粘结力。常用的处理方法有除油垢、凿毛、甩浆、划纹等。
中间层是底层与面层连接的中介,除使连接牢固可靠外,经过适当处理还可以起到防潮、防腐、保温隔热以及通风等作用。
饰面层的作用是满足装饰与其他使用功能的要求。饰面材料可采用各类块材、抹灰、卷材、饰面板、油漆涂料等。
墙面装饰在多数情况下是两种以上的材料混合使用。墙面装饰的做法因面层材料而异。墙纸、墙布采用直接粘贴法。板材和软包面层是通过竖向金属龙骨与墙体连接的,金属龙骨间距应为 400 ~ 600 mm。石材和瓷砖饰面的构造做法,基本是用加胶的水泥砂浆与墙体连接。石材饰面由于其重量较大,有时需要采用另外一些方法,如灌挂固定法和干挂法等。金属板材饰面有铝合金、不锈钢、钛合金、铜合金、铝塑铝等,其中最常用的是铝合金板,其构造做法与木质板材的构造基层处理基本相似,所不同的是龙骨,除用木材外还可以用型钢。镜面玻璃饰面的构造做法主要在于墙体防潮层上,木龙骨在龙骨上铺胶合板或者纤维板钉做一层防潮处理,然后在其上固定镜面玻璃。壁龛的做法与装饰墙面的做法基本相同。
墙面装饰装修构造设计还需注意以下几点:
① 装饰装修的重点要放在人的视觉平视的部位;
② 装饰装修分块尺寸应结合材料的规格;
③ 板材的选择要符合切割的模数;
④ 几种不同材料互相组合在一起时,应考虑到组合后的视觉效果;
⑤ 装饰块面的尺度,既要服从于视觉感受,也要适合室内空间的大小;
⑥ 墙面装饰装修的阴角线尺寸应视空间大小而定;
⑦ 设计中应同时考虑墙体变形缝的装饰构造。
第一节 轻钢龙骨石膏板隔墙构造

图 14-1-1 单层石膏板隔墙墙面三维图

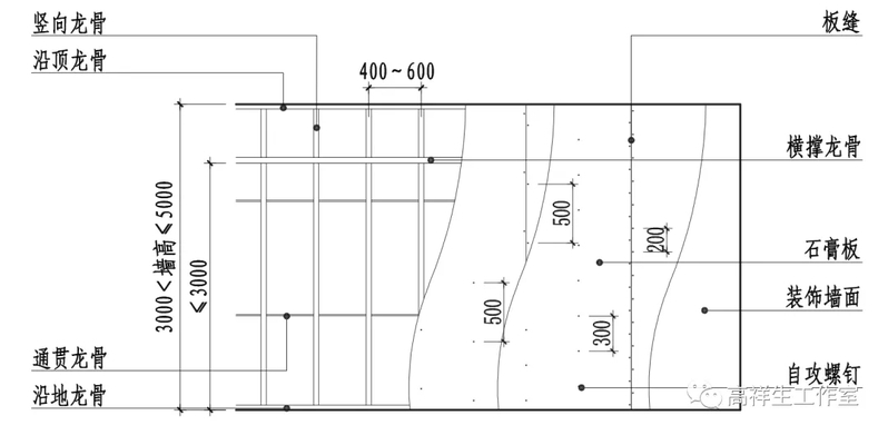
图 14-1-2 单层石膏板隔墙墙面立面图

图 14-1-3 单层石膏板隔墙墙面构造节点图(一)

图 14-1-4 单层石膏板隔墙墙面构造节点图(二)

图 14-1-5 双层石膏板隔墙墙面三维图

图 14-1-6 双层石膏板隔墙墙面立面图

图 14-1-7 双层石膏板隔墙墙面构造节点图(一)

图 14-1-8 双层石膏板隔墙墙面构造节点图(二)

图 14-1-9 轻钢龙骨隔墙交接(一)构造节点图(墙端头)

图 14-1-10 轻钢龙骨隔墙交接(一)三维图(墙端头)

图 14-1-11 轻钢龙骨隔墙交接(二)构造节点图(不同厚度隔墙)

图 14-1-12 轻钢龙骨隔墙交接(二)三维图(不同厚度隔墙)

图 14-1-13 轻钢龙骨隔墙交接(三)构造节点图(墙面十字交接)

图 14-1-14 轻钢龙骨隔墙交接(三)三维图(墙面十字交接)

图 14-1-15 轻钢龙骨隔墙交接(四)构造节点图(墙面墙角交接)

图 14-1-16 轻钢龙骨隔墙交接(四)三维图(墙面墙角交接)

图 14-1-17 轻钢龙骨隔墙交接(五)构造节点图(墙面丁字交接)

图 14-1-18 轻钢龙骨隔墙交接(五)三维图(墙面丁字交接)

图 14-1-19 轻钢龙骨隔墙交接(六)构造节点图(隔墙与地面交接)

图 14-1-20 轻钢龙骨隔墙交接(六)三维图(隔墙与地面交接)
第二节 玻璃隔墙构造

图 14-2-1 玻璃隔墙(一)三维图方向一

图 14-2-2 玻璃隔墙(一)三维图方向二

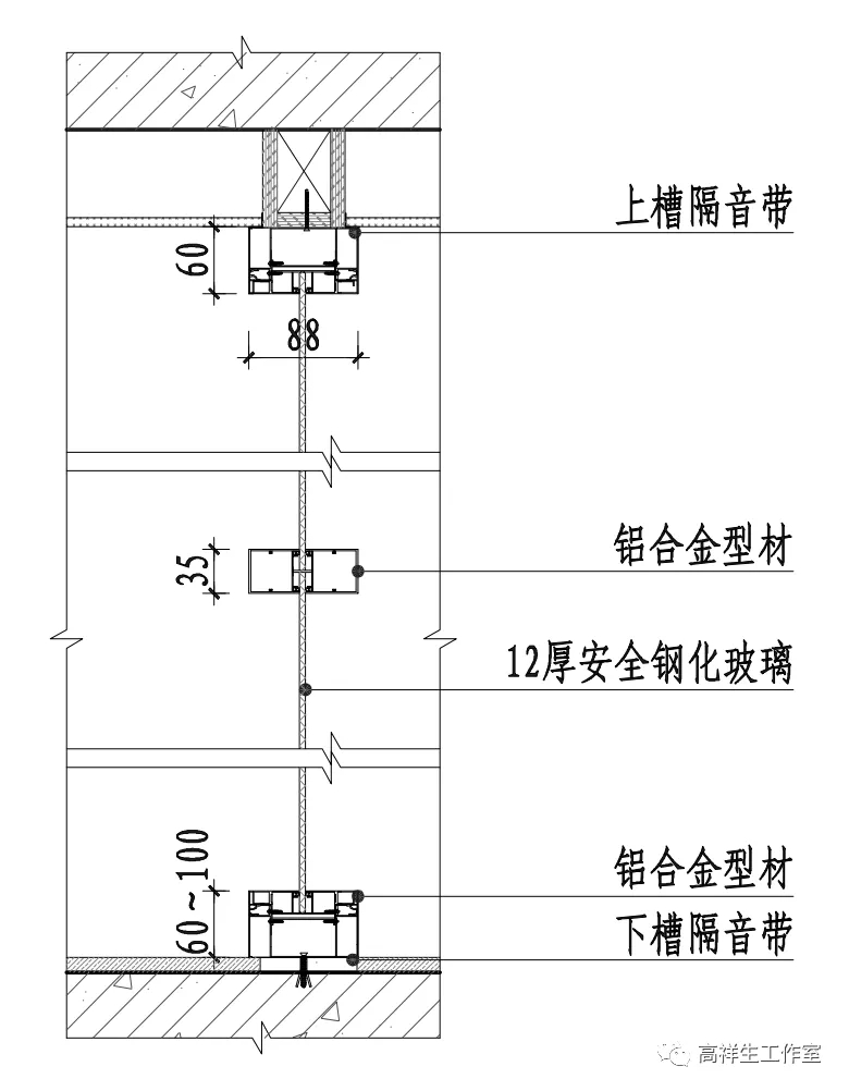
图 14-2-3 玻璃隔墙(一)竖向构造节点图

图 14-2-4 玻璃隔墙(一)横向构造节点图

图 14-2-5 玻璃隔墙(二)三维图

图 14-2-6 玻璃墙面(一)三维图

图 14-2-7 玻璃隔墙(二)构造节点图

图 14-2-8 玻璃墙面(一)构造节点图

图 14-2-9 玻璃墙面(二)三维图

图 14-2-10 玻璃墙面(三)三维图

图 14-2-11 玻璃墙面(二)构造节点图

图 14-2-12 玻璃墙面(三)构造节点图
第三节 墙砖饰面构造

图 14-3-1 墙砖墙面(一)构造节点图

图 14-3-2 墙砖墙面(一)三维图

图 14-3-3 墙砖墙面(二)构造节点图

图 14-3-4 墙砖墙面(二)三维图

图 14-3-5 墙砖墙面(三)构造节点图

图 14-3-6 墙砖墙面(三)三维图

图 14-3-7 墙砖墙面(四)构造节点图

图 14-3-8 墙砖墙面(四)三维图

图 14-3-9 墙砖墙面(五)构造节点图

图 14-3-10 墙砖墙面(五)三维图

图 14-3-11 墙砖墙面(六)构造节点图

图 14-3-12 墙砖墙面(六)三维图

图 14-3-13 墙砖墙面(七)三维图

图 14-3-14 墙砖墙面(七)构造节点图

图 14-3-15 粘结高度超过 3 m 处理方式

图 14-3-16 墙砖干挂墙面三维图(通风式背栓)

图 14-3-17 墙砖干挂墙面三维图(全龙骨)

图 14-3-18 墙砖干挂墙面竖向构造节点图(通风式背栓)

图 14-3-19 墙砖干挂墙面横向构造节点图(通风式背栓)

图 14-3-20 墙砖干挂墙面竖向构造节点图(全龙骨)

图 14-3-21 墙砖干挂墙面局部大样图(全龙骨)
第四节 石材饰面构造

图 14-4-1 石材干挂墙面三维图(背栓式)方向一

图 14-4-2 石材干挂墙面三维图(背栓式)方向二

图 14-4-3 石材干挂墙面竖向构造节点图(背栓式)

图 14-4-4 石材干挂墙面横向构造节点图(背栓式)

图 14-4-5 石材干挂墙面三维图(元件式)方向一

图 14-4-6 石材干挂墙面三维图(元件式)方向二

图 14-4-7 石材干挂墙面竖向构造节点图(元件式)

图 14-4-8 石材干挂墙面横向构造节点图(元件式)

图 14-4-9 石材干挂墙面三维图(短槽式)方向一

图 14-4-10 石材干挂墙面三维图(短槽式)方向二

图 14-4-11 石材干挂墙面竖向构造节点图(短槽式)

图 14-4-12 石材干挂墙面横向构造节点图(短槽式)

图 14-4-13 墙面石材湿贴三维图方向一

图 14-4-14 墙面石材湿贴三维图方向二

图 14-4-15 墙面石材湿贴构造节点图

图 14-4-16 墙面石材湿贴构造节点图

图 14-4-17 墙面石材与消防栓箱交接三维图方向一

图 14-4-18 墙面石材与消防栓箱交接三维图方向二

图 14-4-19 墙面石材与消防栓箱交接构造节点图

图 14-4-20 墙面石材与消防栓箱交接局部大样图
